17-1 Wyłącznik zapłonu, regulator zasięgu reflektorów, bezpieczniki
*dla modeli do 2005 r.;
** dla modeli od 2006 r.
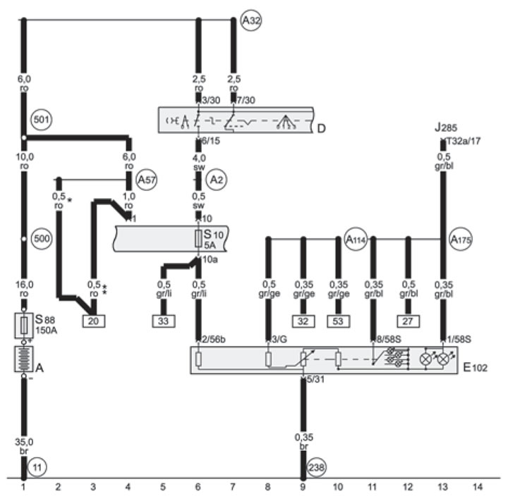
17-2 Wyłącznik światła, bezpieczniki
*dla modeli z automatycznymi reflektorami/światłami doświetlającymi zakręty;
**dla modeli od stycznia 2005 r.;
***dla modeli kombi
# dla modeli do 2006 r.;
## dla modeli z 2007 roku.
17-3 Lewy reflektor, lewe światło przeciwmgielne
*dla modeli z automatyczną regulacją reflektorów;
**dla modeli z reflektorami nisko i wysoko umieszczonymi
17-3 Reflektor prawy, światło przeciwmgielne prawe dla modeli z automatycznym poziomowaniem reflektorów dla modeli z reflektorami nisko i wysoko umieszczonymi

Komentarze gości